logo-n


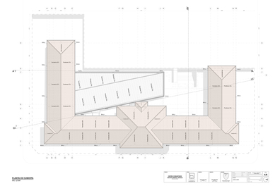
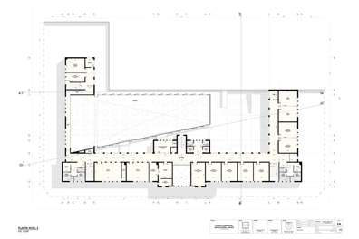
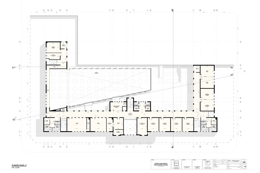
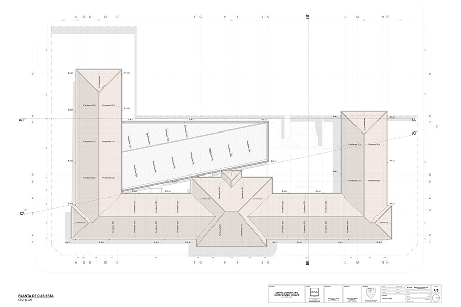
Centro Comunitario Temuco

Temuco - Chile


logo-n CERRAR